Perspectives / 2
projet pédagogique
Conception de la scénographie d’exposition du musée lapidaire de l’Abbaye de la Sauve-Majeure (33).
Centre des Monuments Nationaux︎
Pratique du projet : Licence 3 design
Collaboration avec le master Patrimoine et Musées︎ de l’UBM
Ce projet visait à requalifier les espaces et les modalités de médiation du musée lapidaire de l’Abbaye de la Sauve-Majeure. Les étudiant.e.s en médiation, régie et scénographie du master Patrimoine et Musées ont défini, organisé et conçu 5 unités d’exposition : « Raconter l’abbaye, Construire l’abbaye, Orner l’abbaye, Vivre à l’abbaye, Transmettre l’abbaye ».
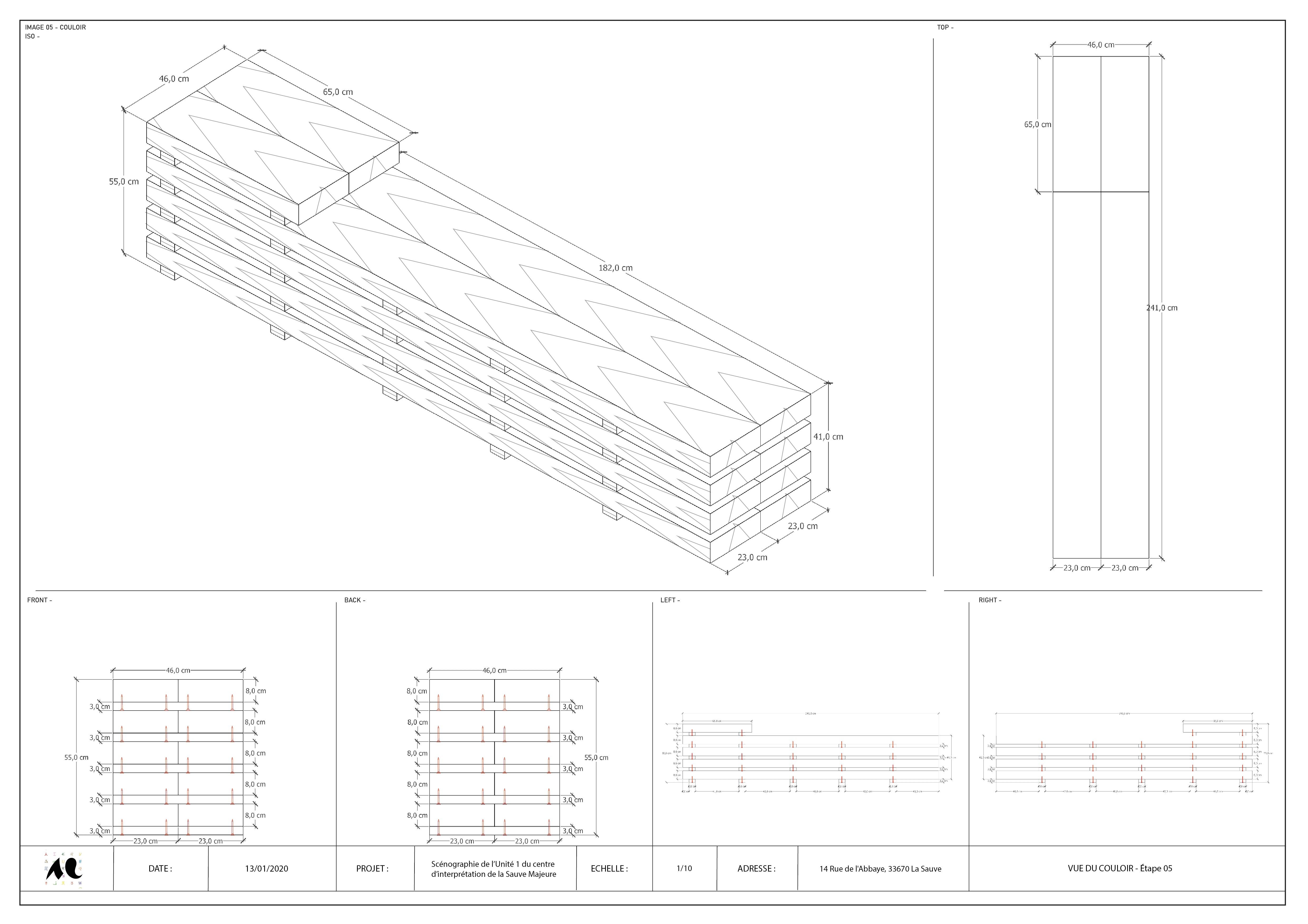
À partir des objectifs de ce cahier des charges, le projet des étudiant.e.s de licence 3 design consistait à donner du sens et rendre concrets les dispositifs de médiation dans la perspective de leur mise en oeuvre collaborative, lors d’un chantier-école organisé in-situ en février 2020.
Au niveau du mobilier et des structures d’exposition : il s’agissait d’articuler les intentions formulées dans le cahier des charges avec des solutions pratiques et des réponses techniques efficaces et adaptables aux ressources matérielles du projet, dans un souci permanent de cohérence entre fond et forme, une exigence de faisabilité et de réversibilité.
Au niveau du graphisme : il s’agissait d’articuler les objectifs de médiation, les différents niveaux d’information attendus dans le projet du centre d’interprétation par des solutions graphiques et typographiques sensibles, pertinentes et exploitables techniquement.
À partir des objectifs de ce cahier des charges, le projet des étudiant.e.s de licence 3 design consistait à donner du sens et rendre concrets les dispositifs de médiation dans la perspective de leur mise en oeuvre collaborative, lors d’un chantier-école organisé in-situ en février 2020.
Au niveau du mobilier et des structures d’exposition : il s’agissait d’articuler les intentions formulées dans le cahier des charges avec des solutions pratiques et des réponses techniques efficaces et adaptables aux ressources matérielles du projet, dans un souci permanent de cohérence entre fond et forme, une exigence de faisabilité et de réversibilité.
Au niveau du graphisme : il s’agissait d’articuler les objectifs de médiation, les différents niveaux d’information attendus dans le projet du centre d’interprétation par des solutions graphiques et typographiques sensibles, pertinentes et exploitables techniquement.